|
卧式暗装风机盘管厂家*** 大量现货 量多从优 质保一年 产品说明: |
|
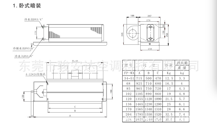
此型机组外形高度低,可理想地安装在天花板内,出风口可接一定长度的风管。此种结构还可另配回风箱。 1. 机组代号:标准型代号为FP;紫外线杀菌型代号为ZFP。 2. 按结构型式分为:卧式代号为W;立式代号为L;卡式代号为K;壁挂式代号为B. 3. 按安装型式分为:明装代号为M;暗装代号为A;卡式机和壁挂机省略。 4. 机组进出水管可在机组的左侧或右侧,面对机组出风口,供回水管在左侧为左机,用Z表示;在右侧时为右机,用Y表示。 5. 机组根据出风口静压的不同,分为低静压型和高静压型二种。低静压型代号省略,出风口静压为0Pa或12Pa,高静压型代号为G30或G50,出风口静压为30Pa或50Pa。 6. 卧式暗装机组可另配回风箱,不配回风箱省略。回风箱的回风口有两个方向供选择。从下方回风的,用X表示,从后面回风的,用H表示。 注:带风口和过滤器的机组,出口静压为0,不带风口和过滤器的机组,出口静压为12Pa。 |








公司产品销售价格严重说明:尊敬的客户您们好,我公司网上销售的产品型号种类繁多,有上千种,其中大多部分是根据客户的要求,订购的产品设备,各省份地区客户要求的产品设备参数大小不同,方式不同,因此设备产品价格不是网上的一口价,也不是网页中以上所写到的:(本商品累计售出0个,6个月内没有成交记录)及(可售数量:500台 累计售出数量0台),等字符来误导客户,其实客户用的交易方式是:线下交易,电话协商咨询或到公司工厂考察、签合同提货,或发邮件、传真签合同通过物流发货、或直接到公司考察签订合同等多种交易方式,同比价位要低廉。望广大客户订货时,需电话详细协商咨询报价成功交易、或发邮件及传真、或到公司单位工厂实地考察成功交易。

